Logo Kinga Madej-Mirecka Architekt Krajobrazu
  • Strona główna
  • Projekty
  • Realizacje
  • Najczęściej
    zadawane pytania
  • Oferta
  • Instagram
  • Pinterest
  • Facebook
  • LinkedIn
→ Projekty

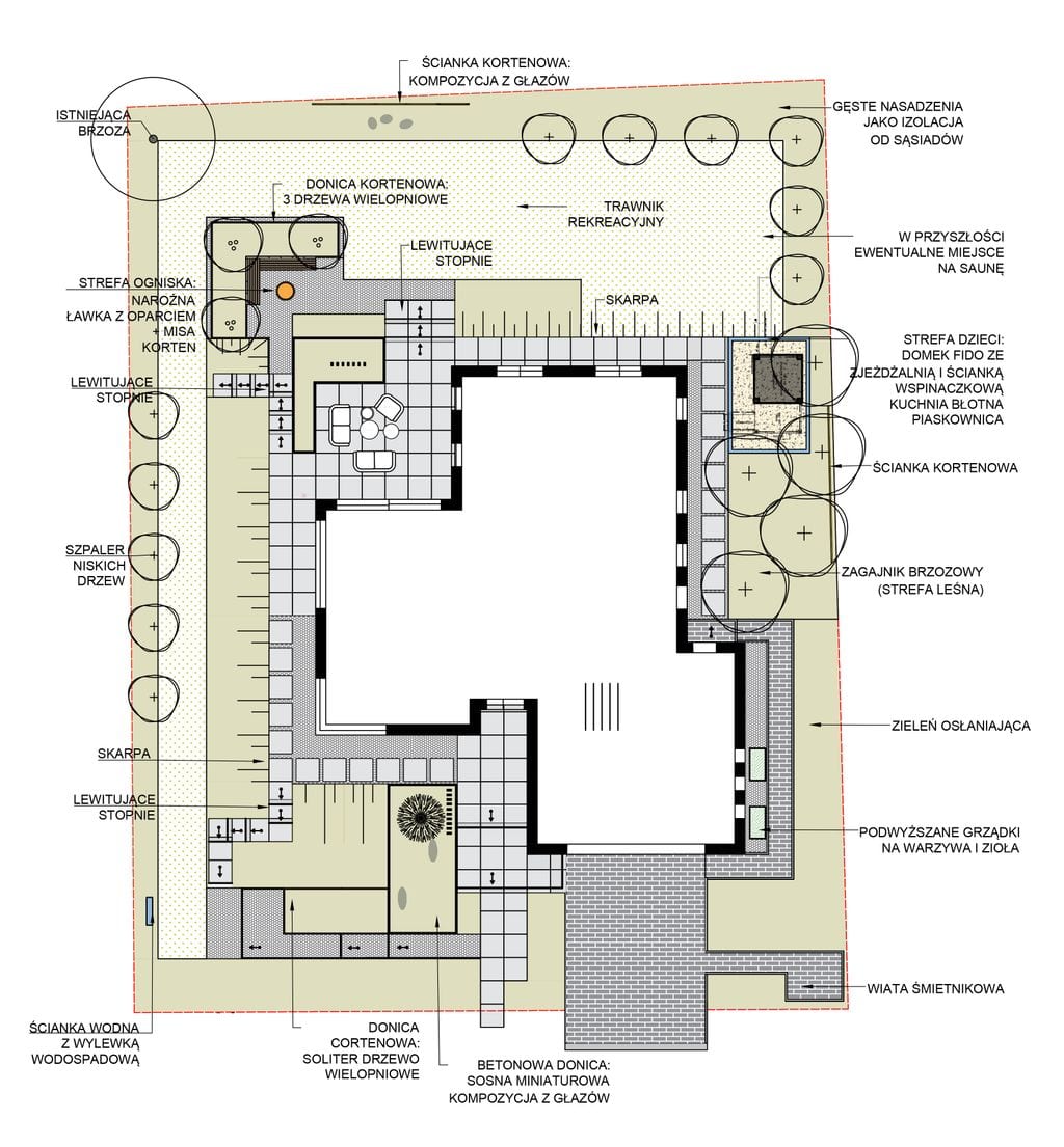
7. Ogród z lewitującymi stopniami - Toruń

Nowoczesna forma ogrodu została ujęta w prostych liniach kompozycyjnych. Wielkoformatowe płyty betonowe zestawiłam z cortenowymi murkami oporowymi na zasadzie kontrastu. Zróznicowanie wysokości terenu podkreśliłam elementami małej architektury (donice, murki). Kluczowym elementem są lewitujące stopnie podświetlone od dołu, dopełniające nowoczesny charakter ogrodu. W części frontowej zaplanowałam niewielką ściankę wodną z wylewką wodospadową, wprowadzającą przyjemny szum wody. Taras, będący przedłużeniem salonu, stanowi główną strefę wypoczynkową. Aby zapewnić prywatność, w najbardziej odsłoniętych miejscach zaplanowałam pełne ściany cortenowe, izolujące ogród od otoczenia. Obok tarasu umieściłam szeroką, narożną ławkę z oparciem oraz cortenową misę ogniskową. W północno-wschodniej części działki znalazłam miejsce na wielofunkcyjny domek dla dzieci (z piaskownicą, zjeżdżalnią, ścianką wspinaczkową i kuchnią błotną). Strefa zabaw sąsiaduje z niewielkim zagajnikiem z brzóz pożytecznych i nasadzeń cieniolubnych. Obszerny trawnik, ujęty w linie proste, zapewnia dużo swobody, a nasadzenia zostały dobrane w grupy tematyczne. Od strony zachodniej ogrodzenie ozdabia szpaler judaszowców kanadyjskich posadzonych na tle żywopłotu sąsiada formowanego z ciemniej pęcherznicy kalinolistnej 'Diabolo'.

Wejście do domu. Ścieżka z betonowych płyt wielkoformatowych otoczona trawami.
Żwirowe stopnie i donica z drzewem wielopiennym porośnięta runianką. Cortenowe oporniki.
Scieżki z betonowych płyt i lewitujące stopnie. Skarpa porośnięta hortensjami, haconechloe i krzewami.
Ujęcie na lewitujące stopnie, klony palmowe. u góry taras wypoczynkowy.
Widok na taras wypoczynkowy z dołu skarpy. Trawy, hortensje, cortenowa misa ogniowa i cortenowy opornik donicy.
Widok na trawnik biegnący wzdłuż domu. Lewitujące stopnie
Strefa ogniska z drewnianą ławą. Ciemny żwir. W tyle wielofunkcyjny domek dziecięcy.
Widok na strefę wypoczynkową z tylnego trawnika.
Strefa ogniska z narożną ławką.
Rzut ogrodu
→ Projekty
  • Instagram
  • Pinterest
  • Facebook
  • LinkedIn

Kinga Madej-Mirecka Architekt Krajobrazu © 2027 | Wszelkie prawa zastrzeżone

Logo Kinga Madej-Mirecka Architekt Krajobrazu

Kontakt

+48-501-057-452
ogrody.kingamadej@gmail.com